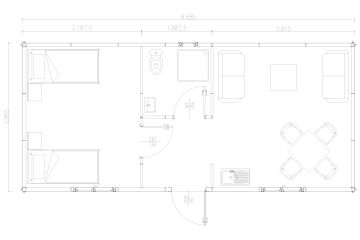
Casa para refugiados com 2 quartos

35 m²

  • Quarto 11,511 m²
  • Casa de banho 3,376 m²
  • Sala de estar 13,864 m²
  • Hall 3,376 m²
  • Comprimento 8.885 m
  • Largura 3.965 m
  • Altura 2.500 m
  • Total de metros quadrados 35 m²
Atualmente, 59 convidados estão a ver este produto
Contactar-nos
Mais vistos