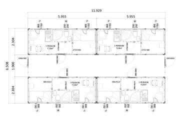
77 m² Dormitório de Engenheiro em Contentor

Atualmente, 36 convidados estão a ver este produto
Contactar-nos
Mais vistos