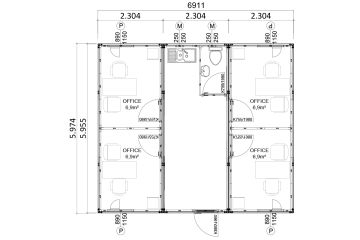
42m² Clínica de contentores

Atualmente, 49 convidados estão a ver este produto
Contactar-nos
Mais vistos