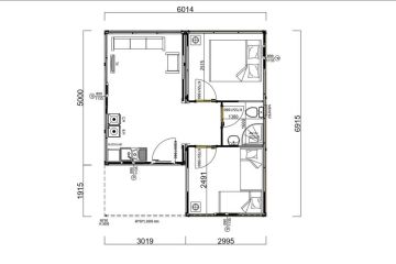
42 m² Contentor Casa

  • Quarto 7,5 m²
  • Quarto 7,5 m²
  • Salão 15 m²
  • Sanita Duche 2,5 m²
  • Hall 2,5 m²
Atualmente, 31 convidados estão a ver este produto
Contactar-nos
Mais vistos