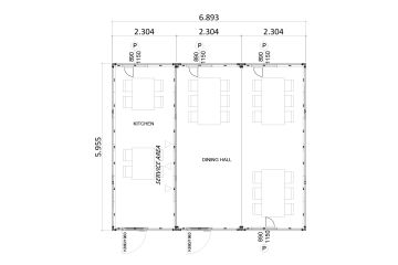
41 m² Sala de jantar Contentor

Atualmente, 89 convidados estão a ver este produto
Contactar-nos
Mais vistos