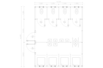
WC e duche modular de 8 capacidades

33 m²

  • Capacidade 4 casas de banho 4 duches
  • Comprimento 5.120 m
  • Largura 6.475 m
  • Altura 2.500 m
  • Total de metros quadrados 33 m²
Atualmente, 39 convidados estão a ver este produto
Contactar-nos
Mais vistos