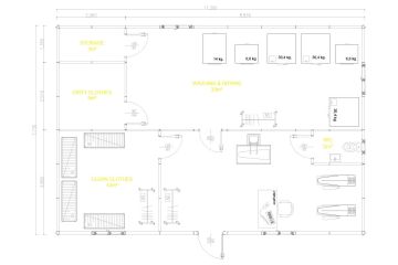
Small Modular Laundry

  • Comprimento 11.395 m
  • Largura 7.730 m
  • Altura 2.500 m
  • Total de metros quadrados 88 m²
Atualmente, 83 convidados estão a ver este produto
Contactar-nos
Mais vistos