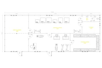
Large Modular Laundry

  • Comprimento 20.180 m
  • Largura 7.730 m
  • Altura 2.500 m
  • Total de metros quadrados 156 m²
Atualmente, 39 convidados estão a ver este produto
Contactar-nos
Mais vistos