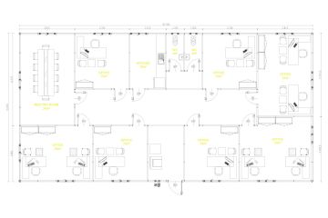
Escritório Modular para 10 pessoas

207 m²

  • Capacidade 10 Person
  • Comprimento 20.180 m
  • Largura 10.240 m
  • Altura 2.500 m
  • Total de metros quadrados 207 m²
Atualmente, 58 convidados estão a ver este produto
Contactar-nos
Mais vistos