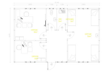
Clínica Modular Pequena

66 m²

  • Capacidade 4 Beds
  • Comprimento 10.140 m
  • Largura 6.475 m
  • Altura 2.500 m
  • Total de metros quadrados 66 m²
Atualmente, 96 convidados estão a ver este produto
Contactar-nos
Mais vistos